Instituto de Medio Ambiente.

Image 2 De 4

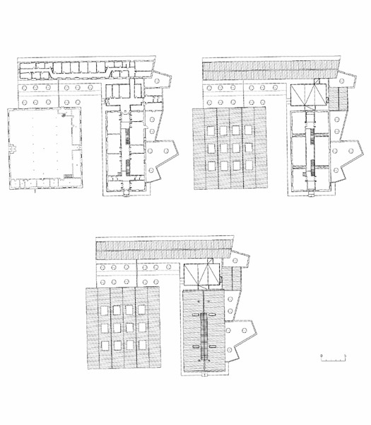
Rehabilitación de dos edificios próximos de la Fábrica de armas para laboratorios de investigación de medioambiente.

Un volumen principal de planta rectangular y estructura de cubierta de madera que define la entrada de Carlos III al conjunto (Museo de arma blanca). Esta zona se ha rehabilitado como espacio de pequeños despachos y laboratorios.

La Nave de mayores dimensiones (antiguo Taller de Forja)  con estructura metálica se rehabilita con dos plantas para laboratorios de medioambiente. El interior tiene los paramentos revestidos con acero negro y pavimentos de resina de color verde creando así una imagen especial que dialoga con ls estructuras reoblonadas de cubierta.  La unión de los dos volúmenes se realiza por la construcción de un edificio de fachada acristalada y planta cuadrada donde se sitúa la secretaría y dirección del centro.

 

Interior de zona de Laboratorios desde la planta superior.
Vista del cuerpo de nueva planta acceso al conjunto.
Galería inferior de acceso a laboratorios. Doble escalera de acceso a planta superior.