Centro de Empresas del Parque Científico tecnológico de Albacete.

Image 2 De 7

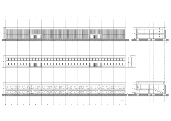
Edificio para vivero de empresas del parque Científico  de Albacete con dos plantas y sótano. Un edificio de planta lineal con un eje interior que deja a ambos lados espacios modulados de laboratorios.

En una de las fachadas la malla metálica que cubre el frente tamiza la entrada de la luz y la visión desde el exterior. La otra fachada con un doble acristalamiento ofrece la imagen del vidrio como superficie uniforme y continua. Los laterales se revisten de piedra de color negro. Los núcleos de escaleras marcan el ritmo de acceso y núcleos de servicios.

 

Acceso desde la fachada acristalada.