Ampliación Politécnica de Ciudad Real.

Image 2 De 6

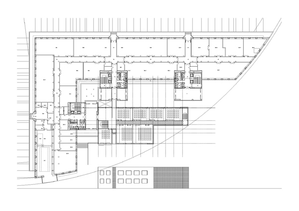
Ampliación de aulas del edificio Politécnico en colaboración con el arquitecto Diego Peris López.

Un volumen de dos plantas con aulas de diferentes dimensiones a ambos lados de un pasillo central. El edificio se une a la construcción ya existente diseñada por Antonio Fernández Alba con acceso desde el vestíbulo de este edificio.

Para diferenciarse del mismo se reviste de una doble piel de hormigón y acero cortén perforado en su cara externa estableciendo así un diálogo con el hormigón de colores claros que integra el conjunto del edificio Politécnico.

Para adaptarse al solar disponible el volumen se fragmenta con una zona final más estrecha con aula en un solo lado y un gran ventanal que ilumina esta zona del pasillo.

 

Pasillo interior de acceso a las aulas




Vista del viario exterior con valla y el ITQUIMA al fondo