Ampliación del Instituto de Desarrollo Regional de Albacete

Image 2 De 4

Proyecto realizado en colaboración con Nieves Cabañas para ampliación de un Instituto de Investigación.

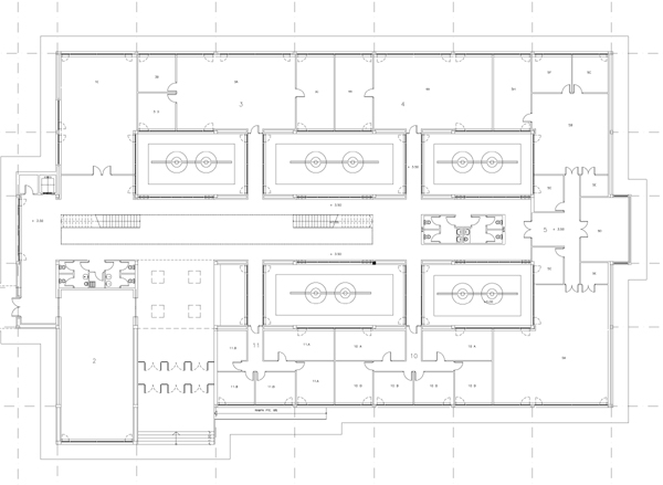
Un eje central donde se sitúa una doble escalera lineal deja patios interiores en torno a los cuales se organizan laboratorios y espcios de trabajo.

Realizado con estructura prefabricada de hormigón  que se hace patente en la imagen exterior del edificio y energías renovables en cubierta (paneles solares).

 

Fachada de acceso
Escalera interior desde planta primera